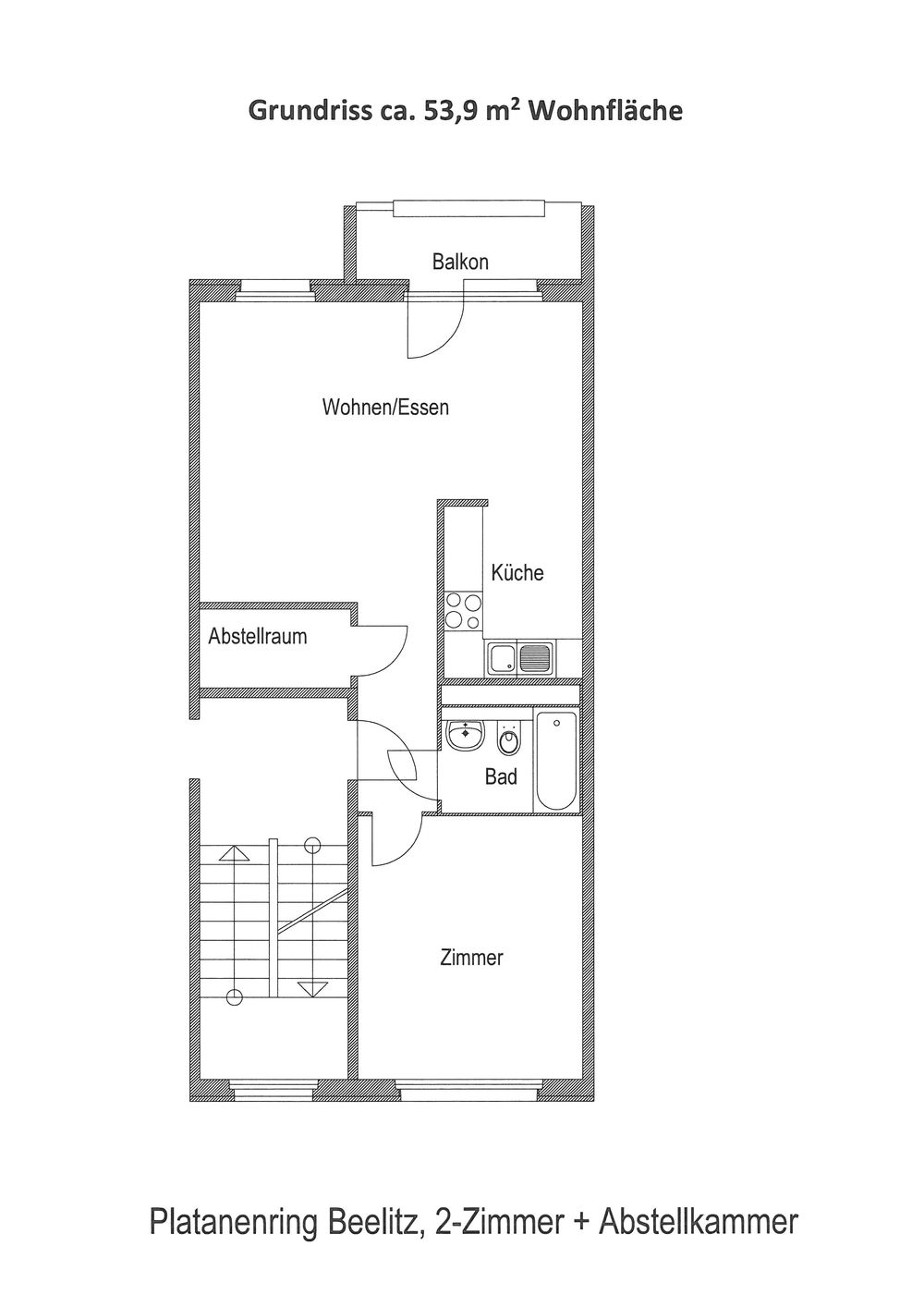
Platanenring 08-19, 53,90 qm, sanierte 2-Zimmer-Whg mit EBK und Balkon
Bei den Bildern handelt es sich ggf. um Beispiel- und/oder Archivfotos. Die Möblierung ist nicht Bestandteil der Mietsache.
Abweichungen von technischen Einzelheiten und den in den Grundrissen und/oder Bildern dargestellten Details und/oder Flächen bleiben vorbehalten.
Sanierte, moderne 2-Zi-Whg mit EBK und Balkon
| Zimmer | 2 |
| Fläche in m2 | ca. 53,9 |
| Etage | 4. OG re |
| Nettokaltmiete | 502,92 |
| Nebenkostenvorauszahlung | 153,00 |
| Bruttowarmmiete | 655,92 |
Besichtigung am Samstag, 24.01.2026, zwischen 12:30 und 13:00 Uhr. Treffpunkt Platanenring 19, 14547 Beelitz. Sie können ohne Voranmeldung kommen.
Beschreibung:
Liebevoll sanierte Komfort-Wohnung mit toll durchdachtem Grundriss.
Die Wohnung befindet sich im 4. OG.
Ausstattung:
Modernes Bad mit Wanne;
Einbauküche mit Elektroherd, Cerankochfeld und Dunsthaube, teilweise Halogendeckenspots;
Modernisierte Elektrik;
Balkon ist vorhanden.
Energieausweis:
Energieverbrauchskennwert: 115,9 kWh/ (m².a), Energieeffizienzklasse D; Verbrauchsausweis inkl. Energieverbrauch für Warmwasser. Befeuerungsart: Wärmelieferung, Baujahr: 1982
Gebäude:
Etage: 4. OG rechts
Lage:
Beelitz liegt ca. 15 Autominuten südwestlich von Berlin und Potsdam entfernt, in einer landschaftlich reizvollen Umgebung. Der Platanenring befindet sich in einer zentralen, aber dennoch ruhigen Stadtlage. Einkaufsmöglichkeiten sind in wenigen Fußminuten erreichbar.
Sonstiges:
Bei den Nebenkosten handelt es sich um Vorauszahlungen, die jährlich nach dem tatsächlichen Verbrauch abgerechnet werden.
Mietlaufzeit:
Das Mietverhältnis ist unbefristet mit einer Mindestmietzeit von 1 Jahr.
Kaution:
3 Nettokaltmieten.
Vermietung ab:
sofort
Ihr Ansprechpartner Simone Nentwich Telefon 030/89384011 Email nentwich@rbb-immo.de






