Am Karlsbad 10, WE 14, 2-Zi-EG-Whg nahe Potsdamer Platz
Bei den Bildern handelt es sich ggf. um Beispiel- und/oder Archivfotos.
Abweichungen von technischen Einzelheiten und den in den Grundrissen und/oder Bildern dargestellten Details und/oder Flächen bleiben vorbehalten.
| Zimmer | 2 |
| Fläche in m2 | ca. 62,83 |
| Etage | EG SF |
| Nettokaltmiete | 997,79 |
| Nebenkosten | 226,00 |
| Gesamt | 1.223,79 |
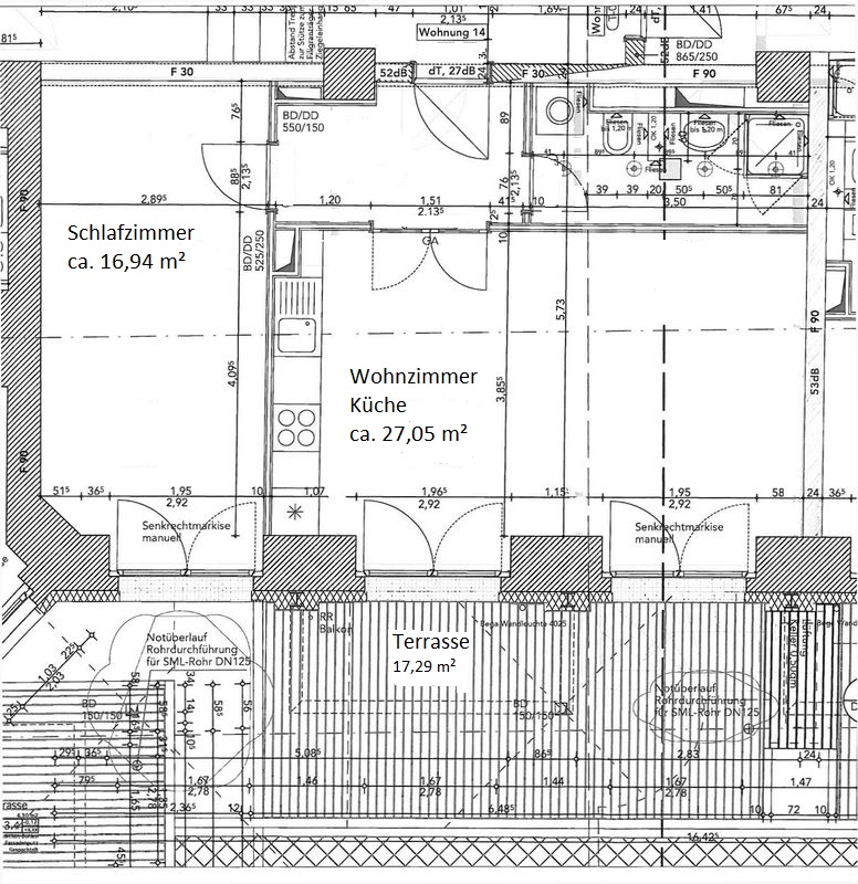
Lage: Am Karlsbad 10 in Berlin-Tiergarten, 2-Zi-EG-Whg mit EBK und Terrasse im Seitenflügel
Beschreibung:
Wohnen im Zentrum Berlins, direkt gegenüber dem Potsdamer Platz, ruhig und grün, mit Charme und Komfort in einem historischen, denkmalgeschützten Haus nahe dem Landwehrkanal. Attraktive 2-Zimmer-EG-Wohnung mit hochwertiger Ausstattung.
Ausstattung:
Wohn-/Essbereich mit offener Küche und Zugang zur Terrasse, Schlafzimmer, Duschbad, Flur, 1 Kellerraum. Eine moderne Einbauküche; hochwertiges Bad mit Naturfliesen, Dusche, Handwaschbecken und WC, Waschmaschinenanschluss. Fernwärme mit zentraler Warmwasserversorgung.
Lage:
Ihre neue Adresse Am Karlsbad befindet sich nur wenige Fußminuten vom Potsdamer Platzt entfernt und bietet eine intakte Infrastruktur und gehobenes Ambiente zum Wohlfühlen. Shoppingzentren, Kultureinrichtungen sowie Flaniermeilen sind in unmittelbarer Nähe.
Energieausweis:
Fernwärme mit zentraler Warmwasserversorgung. Verbrauchsausweis; Umbau zu Wohnungen 2008; Endenergieverbrauch: 72 kWh/(m²·a); Energieeff.kl.: B
Sonstiges:
Bei den Nebenkosten handelt es sich um Vorauszahlungen, die jährlich nach dem tatsächlichen Verbrauch abgerechnet werden.
Vermietung ab:
ab 01.06.2026
Laufzeit:
Es wird ein unbefristeter Mietvertrag abgeschlossen mit einer Mindestmietzeit von 1 Jahr.
Kaution:
3 Nettokaltmieten
Ihr Ansprechpartner Simone Nentwich Telefon 030/89384011 Email nentwich@rbb-immo.de









